Wohnbauprojekt Am Linzer Stadtpark
Projektdaten
Jahr
- 2007
Status
- Wettbewerb
Typologie
- Wohnen
Größe
- 100.000
KONZEPT
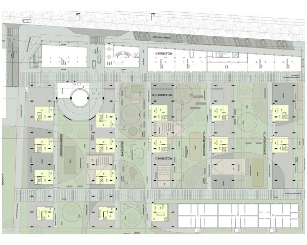
Das städtebauliche Konzept dieses Projektes basiert auf der Überlagerung der Stadt- und Landschaftstruktur.
Der große zusammenhängende Innenraum bietet differenzierte öffentliche und halböffentliche Bereiche an und bildet im Bereich des Erdgeschosses einen grünen Teppich der sich über das gesamte Wettbewerbsgebiet erstreckt.
Die Durchlässigkeit zwischen den Bauteilen und in den Erdgeschossbereichen verstärkt die Transparenz des Innenfreiraumes und verbindet den Freiraum des Bearbeitungsgebietes mit dem Park und vice versa.
Differenzierte Freiraumgestaltung ermöglicht durchlässige öffentliche Grün- und Platzflächen, geborgene halböffentliche Gärten und private Gärten für Bewohner und Kleinkinder.
Schaubilder
0704_01.jpg ![]()
- NMPB
0704_03.jpg ![]()
- NMPB
Schemen
0704_02.jpg ![]()
- NMPB
Pläne
0704_04.jpg ![]()
- NMPB
0704_12.jpg ![]()
- NMPB
0704_13.jpg ![]()
- NMPB
0704_14.jpg ![]()
- NMPB
Aussenraum
0704_05.jpg ![]()
- NMPB







