Liese Prokop Schule Südstadt
Projektdaten
Jahr
- 2011
Status
- Wettbewerb
Auszeichnung / Phase
3.3. PlatzTypologie
- Bildung
3.Platz, Wettbewerb, 2011
Konzept
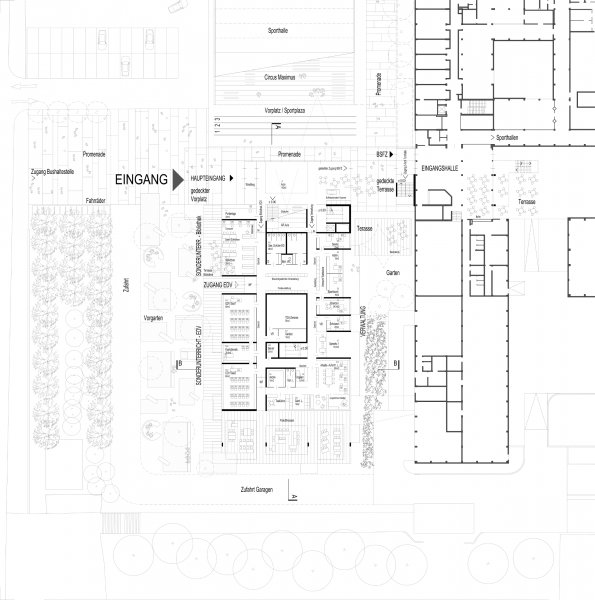
Die Ausrichtung des Grundstücks sowie die städtebauliche Gesamtsituation ergeben die Positionierung und Gliederung der Baumassen am Schulbauplatz.
Das Überdenken des bestehenden Sportareals, die Formulierung des neuen Zugangs des Ensembles, sowie die Schaffung einer unverwechselbaren Ausgestaltung der Baukörper, unter Berücksichtigung der innovativen Ansätze des neuen pädagogischen Konzeptes (Cluster), bildet den Ausgangspunkt des konzeptuellen Ansatzes.
Eigenständige, solitäre Anordnung des dreigeschossigen, kompakten und gegliederten Baukörpers zur bestehenden Bebauung. Nur der neue Zimmertrakt im 2.OG ist brückenartig über den Altbestand vorgesehen und stellt die Verbindung zwischen Bestand und Schulneubau dar.
Schaffung großer Freiflächen auf den Dachflächen des Bestandes sowie im Süden und Osten des Grundstückes.
Die Aula verbindet die einzelnen Bereiche barrierefrei miteinander. Die Halle ist gleichzeitig Drehscheibe und Verteiler für die verschiedenen Bereiche und erstreckt sich über 21/2 Geschosse. Ein fließender Übergang zwischen den Innen- und Außenräumen, sowie dem Marktplatz, den Zwischenräumen und der Halle ermöglicht die im Betrieb notwendige vielfältige, individuelle Nutzung.
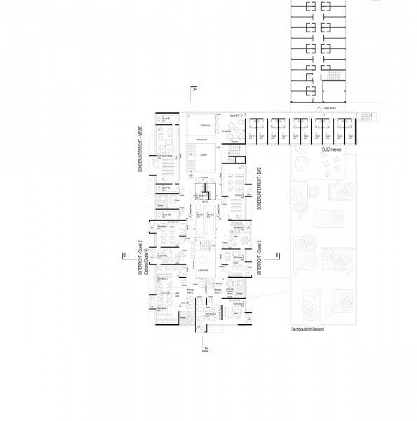
Nebeneinanderliegende und zusammenlegbare Marktplätze von jeweils zwei Clustern pro Geschoß. Abteilung der Marktplätze durch leicht bewegliche, akustische Trennwände zu zwei getrennt nutzbaren Clustern möglich.
Belichtung der Marktplätze über großzügige Innenhöfe, vorgelagerte Terrassen, sowie über Oberlichtverglasungen der Trennwände zu den Bildungsräumen.
Multifunktionale und flexible Nutzung der Marktplätze und Lernräume sowie Teilbereiche der Halle als: Erschließungs- Bewegungsräume, Gruppenarbeit- und Aufenthaltsraum, Lerninseln für offenen Unterricht.







