Kindergarten Stadtpark
Projektdaten
Jahr
- 2010
Status
- Wettbewerb
Typologie
- Bildung
Das Überdenken der städtebaulichen Matrize des Stadtteiles am Rande der Wiener Innenstadt und der historischen Parkanlage und die Schaffung einer unverwechselbaren Ausgestaltung ist der Ausgangspunkt des konzeptuellen Ansatzes.
Ein, auf der vorhandenen Grünraumstruktur der Umgebung, in Anbetracht der Erhaltung des Baumbestandes und Schaffung eines hohen architektonischen Anspruches, basierendes Konzept zeichnet sich als Identitätsstifter der neuen Bebauung mit größtmöglichem Freiraum.
Diese Umgebung bekommt als prägnantes, städtebauliches Zeichen eine neue Dachlandschaft bei Einhaltung der Bebauungsbestimmungen.
Der zweigeschossige, kompakte Baukörper ist in die historische Parkanlage eingefügt und bildet mit dem neugeschaffenen Vorplatz eine neue räumliche Abfolge, die dem Areal neue Qualitäten verleiht.
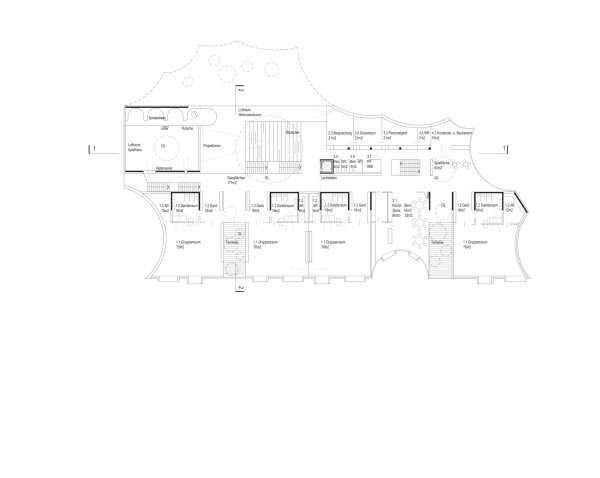
Die innere Organisation der einzelnen Bereiche beider Einrichtungen ist übersichtlich und über kurze Wege miteinander verbunden. Ein fließender, transparenter Übergang zwischen den Innen- und Außenräumen sowie deren Zwischenräumen ermöglicht die im Kindergartenbetrieb notwendige Vielfalt der Nutzung.
Der Baukörper ist durch seine kompakte und unverwechselbare Form, die sich prägnant in die Umgebung einfügt, geprägt. Damit ist der Kindergarten ein neues, städtebauliches Zeichen.
Das Konzept ermöglicht den offenen Kindergartenbetrieb, der sich durch Sicherheit, Freiheit und Rückzugmöglichkeiten für die Kinder auszeichnet.
Leitidee besteht darin, durch die Positionierung der Baukörper zur Strasse und durch den dadurch zusätzlich entstandenen Schallschutz einen gemeinsamen, ruhigen Freiraum zu erzeugen.
Pläne
1004_lageplan_2500px.jpg ![]()
- NMPB
1004_eg_2500px.jpg ![]()
- NMPB
1004_og_2500px.jpg ![]()
- NMPB






