Pflegeheim Vinzenzgasse
Projektdaten
Jahr
- 2008
Status
- Wettbewerb
Typologie
- Gesundheit
Konzept
Das Gebäude bildet mit seiner kompakten Form einen städtebaulichen Bezug zur dichten Bebauung des unmittelbaren Umfelds des Bauplatzes. Der Hauptzugang im Bereich der Vinzenzgasse wird über einen leichten Knick im Baukörper und eine zweigeschossig aufgeständerte Vorplatzzone definiert. Um das Raumprogramm geschossweise aufzuteilen wird ein klassischer Aufbau des Baukörpers vorgenommen: Sockel, Piano Nobile, obere Geschosse
Die Form sowie die Höhe des Baukörpers sind durch die Abstandsregelungen der Wiener Bauordnung bestimmt. Darüber hinaus setzt sich die Dachform auf allen Seiten der Bebauung bis zum letzten Geschoss fort. Die Staffelung der letzten drei Geschosse abfallend in Richtung der Stadt ermöglicht eine städtebauliche Anpassung an die Umgebung. Dadurch sind großzügige Dachterrassen mit Bewegungsflächen, Sonnendecks, ruhigen und wind- und sonnengeschützen Flächen mit wunderschönem Ausblick Richtung Stadtmitte geschaffen.
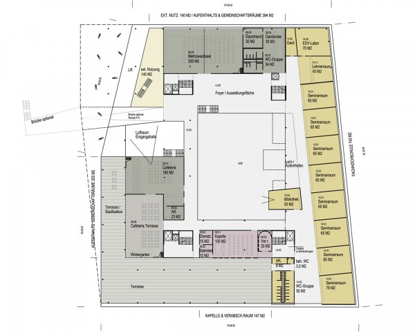
Die Eingangshalle dient als Drehscheibe und erstreckt sich über zwei Geschosse mit Ausblick auf den Innenhof, zum Straßenraum und auf das Schulgrundstück.
Von der Halle erreicht man die Rezeption, die Anmeldung bzw. den Wartebereich für Untersuchung und Therapie. Die ärztlichen Behandlungsräume sind mit Physio- und Ergotherapie, sowie der darüberliegenden Fachhochschule verbunden um Synergien zu ermöglichen. Den Therapieräumen sind Freibereiche im Innenhof vorgelagert.
Auf der linken Seite der Eingangshalle sind freie Flächen für die externe Nutzung vorgesehen. Hier könnte z.b. ein Nahversorger untergebracht werden, der sowohl für Bewohner des Viertels, als auch des Hauses und deren Personal für soziale Durchmischung sorgt. Von der lichtdurchfluteten Eingangshalle erreicht man entlang des Hofes die Fachhochschule und den Kindergarten. Über die Lifte und Stiegenhäuser erreicht man die jeweilige Pflege bzw. Wohnstation.
Schaubilder
fin01_2500px.jpg ![]()
- NMPB
03_ende_2500px.jpg ![]()
- NMPB
0807_ph_01_2500px.jpg ![]()
- NMPB
Pläne
0807_ph_02_2500px.jpg ![]()
- NMPB
0807_ph_06_2500px.jpg ![]()
- NMPB
0807_ph_07_2500px.jpg ![]()
- NMPB
0807_ph_09_2500px.jpg ![]()
- NMPB







