Schulzentrum Donaufeld
Projektdaten
Jahr
- 2009
Status
- Wettbewerb
Auszeichnung / Phase
3.3. PlatzTypologie
- Bildung
Konzept
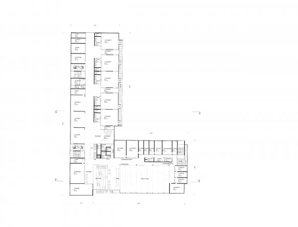
Eine charakteristische Bebauung der städtebaulichen Entwicklungszonen mit höheren Gebäuden bildet den urbanen Rahmen für das neue Campusgebäude. Unterschiedliche Funktionen (KIGA, Volksschule, Ganztagsbetreuung und Sport bzw. Bewegungsbereich) sind in einer Gebäudeform zusammengefasst. In dieser Art organisiert, ermöglichen sie logische, funktionelle Raumabschlüsse mit den kürzesten Wegen.
Das Gebäude bildet mit seiner kompakten L-Form, die einerseits mit dem vorgelagerten Turnsaal entlang der Donaufelderstrasse situiert ist und andererseits mit dem Baukörperteil rechtwinklig von ihr, einen städtebaulichen Bezug zur Bebauung des unmittelbaren Umfelds des Bauplatzes.
Diese noch heterogene Umgebung bekommt ein prägnantes, städtebauliches Zeichen.
Schaubilder
07_4_2500px.jpg ![]()
- NMPB
09_1_2500px.jpg ![]()
- NMPB
06_1_2500px.jpg ![]()
- NMPB
Pläne
schwarzplan_1_2500_2500px.jpg ![]()
- NMPB
lageplan_1_500_2500px.jpg ![]()
- NMPB
e0_1_200_2500px.jpg ![]()
- NMPB
e1_1_200_2500px.jpg ![]()
- NMPB
e2_1_200_2500px.jpg ![]()
- NMPB
schnitt_1_200_2500px.jpg ![]()
- NMPB
schnitt_2_200_2500px.jpg ![]()
- NMPB
schnitt_200_2500px.jpg ![]()
- NMPB











