Vienna Chamber of Labour+ Wien Competition
Project data
Year
- 2003
Status
- Competitions
Awards / Phase
1.1st placeType
- Offices
Reconstruction and Extension of Vienna Chamber of Labour
1st Prize, Architectural Competition
Concept
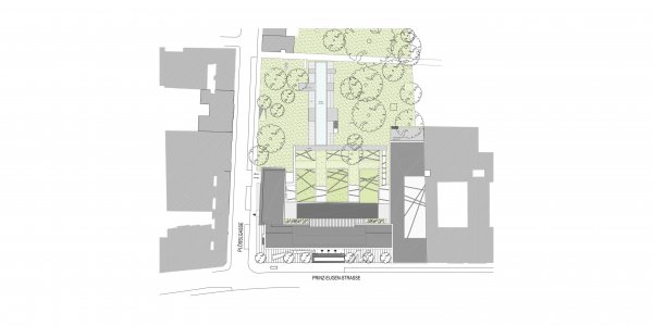
The construction task was divided into two parts. The first part was the conversion of the existing main building with its two side wings. The second part was a new building and two new attics to cover the additional spatial demands in direction relations.
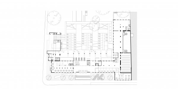
At the core of the property, located on the ground floor of the new building, is the new advisory centre with its three advisory pavilions. Through this, the centre expands further beyond the existing dimensions. Due to its high visitor frequency, it is completely separated from the offices of the Chamber of Labour. The pavilions of the advisory centre contain comfortable, bright rooms that offer sufficient privacy for those seeking advice.
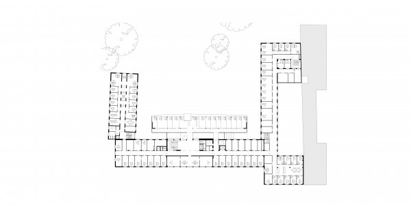
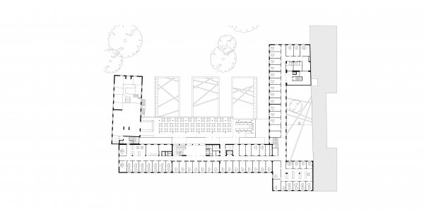
The new six-storey office building, the so-called “Rucksack”, rises above the new advisory centre. It stands parallel to the existing main building. It is connected to the existing building by a three meter wide vertical foyer, that functions as a transparent spatial structure. Through the void of the circulation zone, one can overlook the visitor traffic on all floors.
The open, spacious dining hall, on the first floor, offers a magnificent view into the garden. In order to provide privacy for the employees in the offices, the walls, facing towards the corridor, are made of glass with grey, red, or white door panels. The narrow corridors have been replaced with wide combi-zones, which all storage and stowage areas have been bundled into compact furniture.
The green area, to the west of the existing building with the existing trees, have been cleared of any above-ground development, and they are available to the employees of the Chamber of Labour as an open-air area.












