Competition Monte Laa
Project data
Year
- 2004
Status
- Competitions
Awards / Phase
1.1st placeType
- Education
In collaboration with AN Architects
1st Prize, Competition
In collaboration with AN Architects
Concept
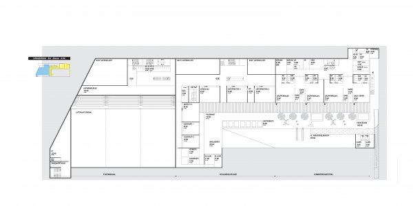
School and day-care centre building is located in the northwest of the site along Central Park. All different functions (sports hall, elementary and secondary school, after-school care and kindergarten) combined into one building form.
This creates large connected open spaces, in the south (garden) and southwest of the site (roof landscape on the sports hall) with break and sports areas, different uses and with good sunlight.
Access area can be found to the separate functional areas as sports hall, secondary school, primary school, after-school care and kindergarten from a common arcade parallel to the park in the north and to the day-care centre from the south-east from Laaer-Berg-Straße.
Despite clearly delimitable areas of the individual functional groups, variable uses are possible with changing space requirements of the individual educational institutions. The break halls of the elementary and secondary schools and the foyer of the sports hall can also be combined.

















