Living in Ziegelhofstraße
Project data
Year
- 2016
Status
- Competitions
Awards / Phase
1.1st placeType
- Residential
The Three Siblings
Living in the garden
1st Prize, Architectural Competition, 2016
Together with: Hirschstetten Vermietungs GesmbH
This project is a strategy that addresses an urban script based on a minimum of structured elements and guidelines, thus allowing maximum freedom for development. The entity, the base, three structures: Small, Medium, Large and their common green space in between, are characterized like a score by diversity, liveliness, adaptability, permeability and variability.
In the following areas, the composition of the buildings represents a new interpretation of the characteristic Viennese perimeter block development in the form of a residential cluster:
1 - Base:
Garage, drugstore and police station are in a flexibly adaptable size. Apartments come with a green front zone: balconies and terraces, common rooms
2 - Urban Garden:
Residential garden, common areas with community terraces, atrium apartments, common areas, cooking studio, laundry, garden
3 - Housing Block:
Standard living floors with adaptable, optional add-on types: add-on room, add-on staircase, add-on apartment
4 - Roof landscape:
Garden landscape with herbs and vegetable beds, urban garden, extensively planted roofs, residents' garden, communal open spaces - "a roof terrace for all".
Individual Living
The individual living units are part of the common, flexible structure, and open for individual adjustments. The apartment types are proposed as a standard system, and allow a high degree of individuality and adaptability through an optional add-on system using an add-on room, add-on staircase and add-on apartment.
Since pluralism, diversity, polychromy and vibrancy have become the key characteristics of urban space, programme diversity and adaptability/flexibility of spaces, they became increasingly important arguments in the choice of working and living space.
The neutral typology and the extensive area on which, at the base, the housing units extend, allow flexibility for the intermediate space and for the organisation of the living space.
The transition, between public and private, is characterised by a gentle spatial separation by means of different greenery. The result is an open communion in neighbourly sociability with a high level of private domestic comfort.
Concept
The concept of this project responds to the specifications of the master plan, and is part of the urban development.
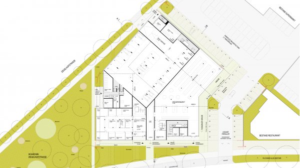
At the intersection of Ziegelhofstraße and Quadenstraße, a new quarter house is proposed. Two space-defining directions, that of Ziegelhofstraße to the north and that of Quadenstraße to the west, form a special building. In addition at the frame edge, a third structure with a supermarket will be proposed.
Structure
Small, the structure along the Quadenstraße, connects to the building culture of the surrounding context and leads, via a medium, an urbanistic accent towards the park, to Large, the largest structure of the residential complex.
In accordance with the master plan, a drugstore, with an inviting arcade, is proposed in the base. The roofed arcade creates space for strolling. Parking spaces for bicycles, bike-sharing and charging stations are also located in the covered area.
Parking spaces for cars were designed, in accordance with the master plan. The parking is regulated accordingly to the residential complex, police station, and business premises. Thus, 40 open parking spaces are arranged, in the outside area around the residential complex, with 30 covered, cross-ventilated garage parking spaces on the mezzanine floor.
By integrating the storage rooms in the base, creative new uses in connection with the green courtyard can be found by the residents: Hobby room, workshop, etc.
This means, the cellar can be entirely avoided, which also nullifies the costs of earthwork and foundation work.
Along the Quadenstraße, a mezzanine floor, with a cross-ventilated car garage, will be arranged. Above it there is space for storage rooms, residents' community rooms - cooking studio, launderette, and cinema. A spacious, green courtyard connects these programs with the residential complex.
The roof of the green plinth forms the common garden of the residential complex. Seating arrangements, sun decks, auditorium, garden beds for herbs and vegetables can be found here. The view from the residents' garden, especially to the west and south, invites you to linger.
The parking facilities complement the residential complex, and invites the residents to enjoy the added value of green and recreational areas. The location, to the directly adjacent residential park Ziegelhofstraße, creates an unmistakable urban development situation, which can be felt by every resident. Urban structures situated in a neighbourly environment. The Three Siblings form a transition between the desire for inner-city redensification and individual garden living.








