Ehemaliges Postsparkassengebäude - Adaptierung
Project data
Year
- 2020
Status
- Competitions
Type
- Education
- Culture
in ARGE mit Ablinger Vedral & Partner
Architekturwettbewerb, 2020
In ARGE mit Ablinger Vedral & Partner
Konzept
Sowohl das historische Erschließungskonzept als auch die Gebäudesymmetrie von Otto Wagner werden fortgesetzt: Die historischen Hauptzugänge führen ins Hochparterre und dieses bildet auch zukünftig die Hauptverteilerebene.
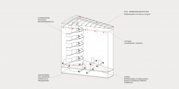
Bei der Verortung der Fluchtstiegen wird die „symmetrische Logik“ des Otto Wagner Baues fortgeführt. Wie in einem Vorentwurfsstand ersichtlich ist, wurden an der von uns vorgeschlagenen Position bereits von Otto Wagner runde Fluchtstiegenhäuser angedacht. Diese Hauptverteilebene des ursprünglich monofunktionalen Gebäudes wird durch Einziehen neuer Decken über dem Tiefparterre zur Verbesserung der Entfluchtung erweitert. Durch den erforderlichen Witterungsschutz der Fluchtstiegen mittels Membrandachkonstruktion entstehen neue, gemeinschaftliche Atrien / Zugangsräume / Kommunikationsräume für die unterschiedlichen Nutzer.
Laut Auslobungsunterlagen sind 3 Fluchtstiegenhäuser zu ergänzen. Diese werden von uns gleichmäßig im Gebäude verteilt, entlang des Ringerschließungssystems angeordnet. Die Entfluchtung von den neuen Stiegen zu den Endausgängen folgen dieser Logik. Die im Hochparterre begrünten Innenhöfe verbessern die Energiebilanz, das Innenraumklima, die Aufenthaltsqualität und bieten neue Nutzungsmöglichkeiten.
Die Materialauswahl basiert auf dem Konzept Otto Wagners. Aluminumblech als Verkleidung der Stiegen mit diffus glänzender Wirkung reflektiert die umgebenden Fassadenflächen und unterstreicht die Leichtigkeit der Konstruktion. Die helle Farbgebung verbessert die Atmosphäre in der engen Innenhoflage. Deckenuntersicht wird verputzt und somit in seiner gewendelten Form verstärkt, der Stufenoberfläche setzt die Terrazzo‐Optik fort.








